![]() | GCS 抽屉柜 |
|---|---|
产品编码 | |
产品规格 | |
产品概述 | |
| 产品报价产品咨询未开通商城 |
产品介绍 |
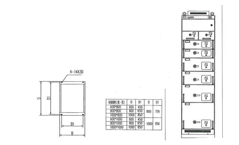
外形尺寸
概述 GCS系列低压抽出式开关柜适用于交流50Hz-60Hz、额定工作电压660V及以下供电系统,如发电,输电、石油化工、厂矿企业、高层建筑供电等行业,作为电能分配、控制及无功补偿之用,尤其是对大型电厂、石油化工等自助化程度密集,要求与计算机对话接口的场所,能满足其求。GCS系列低压抽出式开关柜符合GB7251.12-2013/IEC 61439-2 2011《低压成套开关设备和控制设备》等标准。
使用条件 一、周围空气温度不高于+40℃,不低于-5℃,24h内的平均温度不得高于+35℃。 二、户内安装使用,使用地点的海拔高度不得超过1000m。 三、周围空气相对湿度在最高温度为+40℃时不超过50%,在较低温度时允许有较大的相对湿度(例如+20℃时为90%),应考虑到由于温度的变化可能会偶然产生凝露的影响。 四、设备安装时与垂直面的倾斜度不超过5°。 五、设备应安装在无剧烈震动和冲击的地方,以及不足使电器元件受到腐蚀的场所。
主要技术参数表
|


陕公网安备61030502000231号